Loading...
Skip to Content
INWESTOREM PROJEKTU JEST EKO-PARKIET www.ekoparkiet.eu

DOMY DLA LUDZI KOCHAJĄCYCH NATURĘ – nowe domy na sprzedaż w Inowłodzu koło Tomaszowa Mazowieckiego

WYBIERZ SWÓJ DOM

Jeden sprzedany. Trzy dostępne – w tym wariant premium z większym salonem.
Nowy dom loftowy 130 m² Inowłódz – elewacja frontowa
DOSTĘPNY
Dostępny

Dom Loftowy nr 1

130 m²

760 000 zł

Dowiedz się więcej
Dom loftowy 130 m² Inowłódz – widok z boku
DOSTĘPNY
Dostępny

Dom Loftowy nr 2

130 m²

760 000 zł

Dowiedz się więcej
Nowy dom loftowy 130 m² Inowłódz – sprzedany
SPRZEDANY
Sprzedany

Dom Loftowy nr 3

130 m²

Niedostępny

Dom loftowy premium 160 m² Inowłódz – większy salon
PREMIUM
Premium

Dom Loftowy Premium nr 4

160 m²

Na zapytanie

Dowiedz się więcej

O INWESTYCJI - LOFT 007

Osiedle naszych domów to niebanalna architektura w otoczeniu przepięknych okolic Inowłodza.

LOFT OO7
Loft 007 to kameralne osiedle domów typu stodoła, otulone planowanymi nasadzeniami leśnymi pomiędzy działkami, tworząc spokojną przestrzeń do życia. Nowoczesna architektura w naturalnym otoczeniu tworzy wyjątkową przestrzeń - spokojną, estetyczną i pełną zieleni. Domy z dużymi przeszkleniami o powierzchni 130m² i 166m² w stylu loftowym, ale budowane metodą tradycyjną - pustak ceramiczny i beton komórkowy H+H, ocieplone styropianem o grubości 30cm. Dach ocieplony wełną skalną o grubości 30cm. Elewacja składa się z blachy trapezowej, wyprawy tynkarskiej oraz płytki klinkierowej. Okna tarasowe HS trzyszybowe. Stan deweloperski.
WALORY OSIEDLA - oświetlenie solarne każdej działki, sąsiedztwo z lasem państwowym, ścieżki rowerowe prowadzące od osiedla, duże obszary zielone w trakcie realizacji, dojazd do osiedla drogą asfaltową.

DOMY 130

Domy z dużymi przeszkleniami o powierzchni 130m² w stylu loftowym oferują:

LOFT OO7
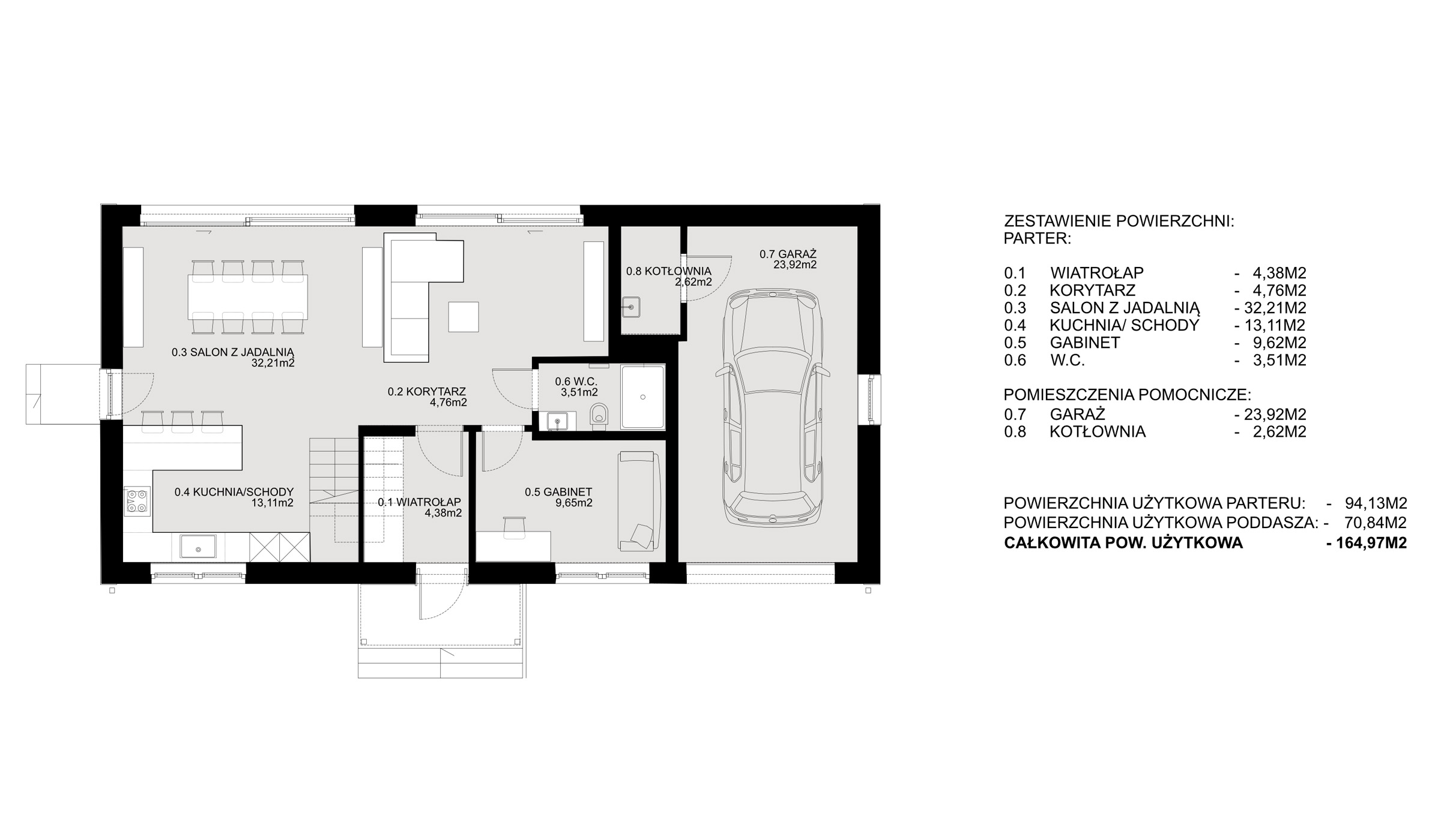
PARTER – to przestronny salon z otwartą przestrzenią aż do kalenicy, połączony z jadalnią oraz kuchnią, z której prowadzą schody na piętro. Znajduje się tu także gabinet idealny do pracy zdalnej oraz wygodna łazienka. Wiatrołap zapewnia komfortowe wejście do domu, a korytarz prowadzi do wszystkich pomieszczeń. Zadaszony taras stanowi idealne miejsce do relaksu na świeżym powietrzu. Pomieszczenia gospodarcze, takie jak kotłownia i garaż, zwiększają funkcjonalność domu (szerokość bramy wjazdowej: 3 m). Podjazd wykonany jest z kostki brukowej, a każde pomieszczenie jest wentylowane.
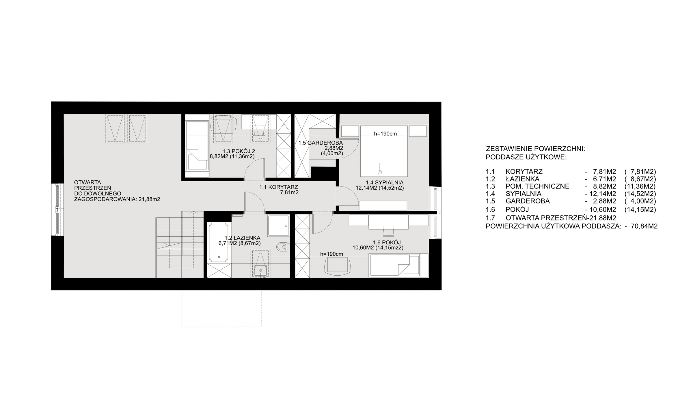
PIĘTRO - przestronny korytarz prowadzący do trzech sypialni i łazienki główna sypialnia połączona jest z garderobą wolna przestrzeń nad salonem, która dodaje wnętrzu przestronności a każde pomieszczenie wjest wentylowane.

DOMY 166

Domy z dużymi przeszkleniami o powierzchni 166m² w stylu loftowym oferują:

LOFT OO7
PARTER - to przestronny salon połączony z jadalnią i kuchnią, z której prowadzą schody na piętro Gabinet idealny do pracy zdalnej oraz łazienka a wiatrołap zapewnia komfortowe wejście do domu a korytarz prowadzi do wszystkich pomieszczeń. Pomieszczenia gospodarcze, takie jak kotłownia i garaż, zapewniają dodatkową funkcjonalność i wygodę (szerokość bramy wjazdowej 3m) Podjazd z kostki brukowej a każde pomieszczenie wjest wentylowane.
PIĘTRO - przestronny korytarz prowadzący do czterech sypialni i łazienki, dwie główne sypialnie połączone z garderobami a każde pomieszczenie wjest wentylowane.

DLACZEGO WARTO ZAINWESTOWAĆ W NASZE DOMY

Wybór naszego domu, położonego tuż obok lasu, to doskonała decyzja dla osób ceniących spokój i bliskość natury.

LOFT 007
Bliskość natury i codzienny kontakt z przyrodą pozytywnie wpływa na zdrowie i samopoczucie. Spacer po lesie, poranna kawa na tarasie z widokiem na drzewa – to wszystko czeka na Ciebie w naszym domu. Położenie domu w pobliżu lasu, z dala od miejskiego zgiełku, gwarantuje ciszę i spokój. Tym samym stanowi idealne miejsce do relaksu po ciężkim dniu pracy. Las zapewnia czyste, świeże powietrze, co jest szczególnie ważne dla zdrowia i dobrego samopoczucia. Ponadto może stać się bazą aktywnego wypoczynku w postaci przejażdżek rowerowych, biegania, nordic walking czy grzybobrania.
O wrażenia estetyczne dba sama natura, która maluje pejzaże za oknem kolorami zgodnymi ze zmianą pór roku. Bliskość rzeki Pilicy to nie tylko coraz popularniejsze wędkowanie, ale także spływy kajakowe czy leniwy wypoczynek na plaży. Niebanalnym atutem osiedla jest bliskość bazy dydaktyczno- wychowawczej w postaci żłobka, przedszkola, szkoły podstawowej, które razem z Przychodnią Medycyny Rodzinnej zapewnią prawidłowy rozwój i bezpieczeństwo najmłodszych mieszkańców.

It doesn’t matter how many times I have to click, as long as each click is a mindless, unambiguous choice.

Steve Krug
Cras mi tortor, laoreet id ornare et, accumsan non magna. Maecenas vulputate accumsan velit. Curabitur a nulla ex. Nam a tincidunt ante. Vitae gravida turpis. Vestibulum varius nulla non nulla scelerisque tristique.
Mauris id viverra augue, eu porttitor diam. Praesent faucibus est a interdum elementum. Nam varius at ipsum id dignissim. Nam a tincidunt ante lorem. Pellentesque suscipit ante at ullamcorper pulvinar neque porttitor.

Never fall in love with an idea. They’re whores. If the one you’re with isn’t doing the job, there’s always another.

Chip Kidd
Lorem ipsum dolor sit semper amet, consectetur adipiscing elit. In maximus ligula metus pellentesque mattis. Donec vel ultricies purus. Nam dictum sem, ipsum aliquam . Praesent sed nisi eleifend, fermentum orci amet, iaculis libero.
Pellentesque suscipit ante at ullamcorper pulvinar neque porttitor. Integer lectus. Etiam sit amet fringilla lacus. Maecenas volutpat, diam enim sagittis quam, id porta quam. Sed id dolor consectetur fermentum volutpat nibh, accumsan purus.

All that is valuable in human society depends upon the opportunity for development accorded the individual.

Albert Einstein
Fusce hendrerit vitae nunc id gravida. Donec euismod quis ante at mattis. Mauris dictum ante sit amet enim interdum semper. Vestibulum odio justo, faucibus et dictum eu, malesuada nec neque. Maecenas volutpat, diam enim sagittis.
Pellentesque suscipit ante at ullamcorper pulvinar neque porttitor. Sed id dolor consectetur fermentum volutpat nibh, accumsan purus. Lorem ipsum dolor sit semper amet, consectetur adipiscing elit. Inmed maximus ligula metus pellentesque.

Photography is the simplest thing in the world, but it is incredibly complicated to make it really work.

Martin Parr
Donec vel ultricies purus. Nam dictum sem, ipsum aliquam . Etiam sit amet fringilla lacus. Pelenteque suscipit ante at ullamcorper pulvinar neque portor. Integer lectus. Praesent sed nisi eleifend, fermetum orci amet, iaculis libero.
Maecenas volutpat, diam enim sagittis quam, id porta quam. Sed id dolor consectetur fermentum volutpat nibh, accumsan purus. Lorem ipsum dolor sit semper amet, consectetur adipiscing elit. In maximus ligula metus pellentesque mattis.

Oto kilka powodów, dla których warto wybrać nasze domy?

Cenimy Wysoką jakość wykonania

Nasze domy są budowane z najwyższej jakości materiałów, co gwarantuje trwałość i bezpieczeństwo na lata.

Punktualność

Budujemy terminowo. Punktualność umożliwia lepsze planowanie i wykorzystanie zasobów, zarówno ludzkich, jak i materiałowych, co przekłada się na płynność realizacji projektu.

Nowoczesny design

Oferujemy nowoczesne i funkcjonalne projekty, które łączą estetykę z praktycznością, spełniając oczekiwania nawet najbardziej wymagających klientów.

Kochamy minimalizm.

Dbamy o każdy detal, aby zapewnić maksymalny komfort i wygodę mieszkańcom naszych domów. Minimalizm to nasz atut, który sprawia, że nasze wnętrza są oazą harmonii i spokoju.

Energooszczędność

Nasze domy są zaprojektowane z myślą o oszczędności energii, co przekłada się na niższe rachunki za ogrzewanie i chłodzenie.

Lokalizacja

Nasze domy znajdują się w atrakcyjnych lokalizacjach, które oferują łatwy dostęp do infrastruktury miejskiej oraz bliskość natury.

NA CZYM NAM ZALEŻY.

Naszym priorytetem jest pełne zadowolenie klienta. Liczne pozytywne opinie i rekomendacje są najlepszym dowodem na jakość naszych usług. Każdy klient jest dla nas wyjątkowy. Dokładamy wszelkich starań, aby zrozumieć i spełnić wszystkie oczekiwania, dostosowując nasze usługi do indywidualnych potrzeb. Szanujemy czas naszych klientów, dlatego zawsze dotrzymujemy ustalonych terminów realizacji projektów.

LOFT 007

OKOLICA

INOWŁÓDZ I OKOLICE
INFO | 21 PAŻDZIERNIKA
Inowłódz to malownicze miasto położone w województwie łódzkim, nad rzeką Pilicą. Znane jest z zabytkowego kościoła św. Idziego oraz ruin zamku z czasów Kazimierza Wielkiego
ZOBACZ WIĘCEJ
PILICA
INFO | 21 PAŻDZIERNIKA
Rzeka Pilica to najdłuższy lewy dopływ Wisły, mający długość 319 km. Przepływa przez malownicze tereny INOWŁODZA.
ZOBACZ WIĘCEJ
TOMASZÓW MAZOWIECKI I OKOLICE
INFO | 21 PAŻDZIERNIKA
Tomaszów Mazowiecki to miasto w centralnej Polsce, położone nad rzekami Pilicą, Wolbórką i Czarną Bieliną. Znane jest z przemysłu metalowego, całorocznego toru łyżwiarskiego oraz corocznego festiwalu jazzowego.
ZOBACZ WIEJ

KONTAKT

TELEFON:
ADRES:
INOWŁÓDZ
Email

INWESTOR PROJEKTU

ADRES:
Tomaszów Mazowiecki 97-200 ul. Mireckiego 16/18
Email
📞 Zadzwoń
Pokaż mapę
ukryj mapę
📞 Zadzwoń